Logements rue des Bois

Rixheim (68)

2025
réalisation

maitrise d’ouvrage

SOMCO

maitrise d’œuvre

Richter architectes et associés, mandataire / Bruno Kubler, paysage / CTE, structure / Solares Bauen, fluides, HQE, électricité, VRD / dB Silence, acoustique / C2bi, économie

programme
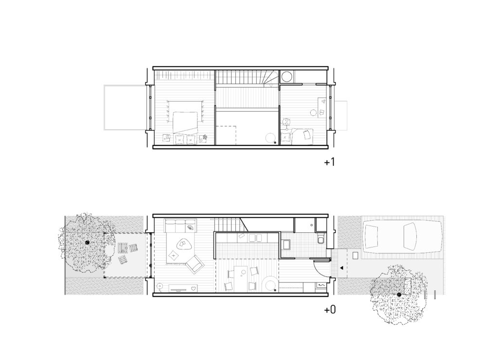
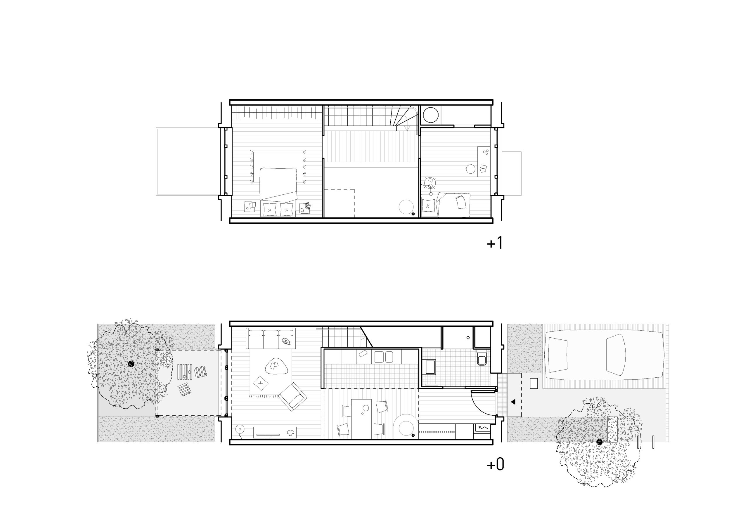
10 logements sociaux dont 8 T3, 1 T2 et 1 T4, conçus comme des maisons sur deux niveaux avec jardin.

photos
Luc Boegly