Groupe scolaire Pablo Neruda

Méry-sur-Oise (95)

2026

maitrise d’ouvrage

Ville de Méry-sur-Oise

maitrise d’œuvre

Richter architectes et associés, mandataire / CTE Strasbourg, structure / Solares Bauen, fluides, environnement / ID, électricité / Vpeas, économie / Gamba, acoustique / Alma, cuisine / Bruno Kubler, paysage / Alcena, opc

programme
Réalisation de la nouvelle école Pablo Neruda, chemin de l’Église

images
Jeudi wang

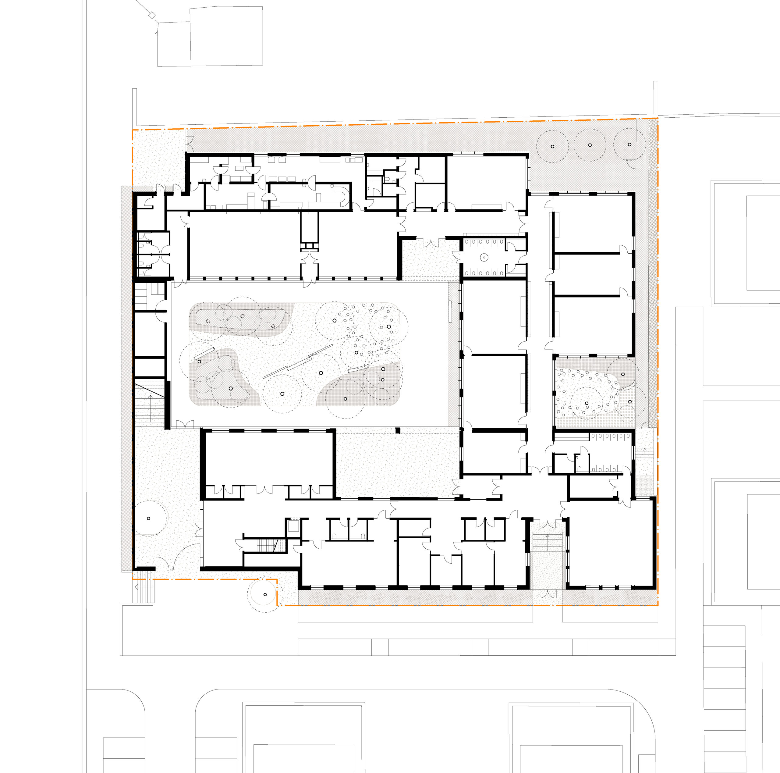
rdc

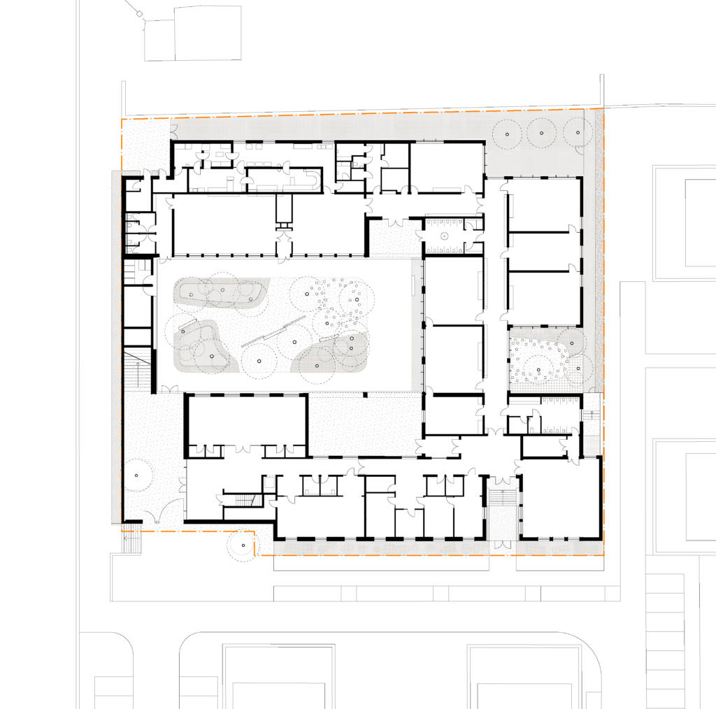
r+1